Lotissement les Quérattes
Le terrain à vendre :
- Parcelle n° 2298
Il s'agit d'une vente avec une villa clé en mains
Pour plus de renseignements :
Villasa Sàrl
Grand Rue 44
2900 Porrentruy
078 947 72 90
032 466 13 42
Lotissement Le Tillot
Parcelles d'une superficie totale de 2'742 m 2. L'établissement d'un plan spécial est obligatoire avec la construction dans ce secteur.
| Jean-François Mercier Rue Saint-Randoald 4 2830 Courrendlin T. +41 (0)78 673 66 61 |
IMMEUBLES A PLUSIEURS LOGEMENTS
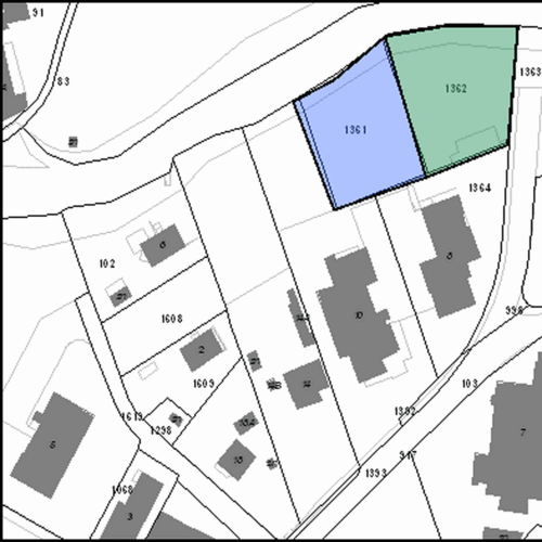
Route de Châtillon
Une parcelle disponibles pour la construction d'un immeuble à plusieurs logements.
- 1361 : 1'132 m2
| Parcelle feuillet 1361
Jean-François Mercier |
Contact
Secrétariat communal
Case postale 71
Route de Châtillon 15
2830 Courrendlin
Tél. 032 436 10 70
Courriel

